南側ベランダ正面に大きな木がありキッチンからもよく見えます。その木の存在もここに決めた理由のひとつだったそうです。部屋数は多く余裕がありますがそれぞれ仕切られているため薄暗いところも多く、閉塞感を感じました。そしてお風呂もマンションにありがちな控えめサイズ。少々サイズアップをしたいというのがご主人のご要望でした。




見違えるほど明るくなったキッチン。新しい風の通り道も出来ました。もともと対面式でしたが開口部が少なく薄暗い印象でした。電気の配線の関係で撤去できない部分以外は全て取り払い、残った部分には収納力たっぷりの薄型キャビネットをつけて機能的に。リビングと一体感を感じるキッチンに仕上がりました。


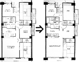
広々リビングを実現するために、隣接する和室の仕切り壁を出来るだけなくしました。来客時に個室として使えるように4枚の引き戸を取り付け、以前物入れだった部分を扉の収納庫に改造し、普段はここに収納出来るようにしました。和室もリビングも明るさと広さの両方を実現できました。
 その奥に見える空間は以前はキッチン横の廊下からしか出入りできない個室だったところ。仕切り壁を撤去してオープンスペースに。








ご主人念願のゆったりバスは既存のものより2サイズアップを実現しました。足を伸ばして入れるお風呂にご家族も大満足!

トイレはタンクや配線がキャビネットに隠れるタイプ。便器の向こうにホコリがたまらず、お洒落なだけではなくお手入れも楽々の優れものです。




 今回の事例のように壁を一箇所なくしただけで、光、風、景色まで変わります。
 仕切り壁の撤去は思ったほど難しくありません。基本を押さえておけば思い通りに空間を広げ、新しいライフスタイルを創造することが可能です。










 奥まった暗い場所にあった和室が『物置部屋』になってしまっていたので、 柱立ての本格的な和室を明るい南側のリビングスペースに 作ることになったのです。

 昼は、暖かい日差しと、独特の和室の雰囲気、畳のいぐさの香りで とても素敵な空間になりました。 また、湿度調節の為に、壁にはエコカラットと言うタイルを使用し、今まで冬場には窓に結露が起きていましたが まったく無くなりました。 インテリア性もグッとよくなりました。

 リビングには、かば桜というほのかに桜色の混じった床材を使用し 温かみが出ました。マンションでは、防音の規定があるため、クッションのついた合板の床材を 通常使うのですが、クッションの付いた足を何箇所も立てその上に厚めのボードを敷 くことで、無垢の床材を敷く事を可能にしました。 また、使い勝手も悪い奥まった和室を解体しリビングスペースに しました。

 押入れも、収納力を考えた床から天井までのお洒落な引き戸に作り直しました。 中は棚板で何段かに分け、すっきりたっぷりの収納スペースに生まれ変わりました。

 柱、敷居など和室の木材は、ヒノキ、杉、ケヤキで、すべて無垢材で す。和室、リビングに使ったほぼすべての素材が 天然の無垢材や、紙100%の壁紙になっています。 お客様のご希望で、地球環境と体に良い物を使いました。